
Pusat Kerja Sama Warisan Dunia Laut Trilateral Wadden di Wilhelmshaven, Jerman, didesain dengan sangat indah oleh firma arsitektur Denmark, Dorte Mandrup A/S.
Pemenang kompetisi desain ini mengalahkan 14 kontestan lain. Bangunan ini akan didirikan di atas bekas bunker Perang Dunia Kedua dan kantor gabungan kerja sama Denmark, Jerman, dan Belanda yang bekerja untuk menjaga area laut Wadden.
Pada pertengahan 1850-an, Laut Wadden merupakan sebuah ekosistem intertidal yang luas dari perairan dangkal, lahan basah, dan area pasang surut yang menyediakan habitat bagi burung-burung yang bermigrasi. Tempat ini perlahan-lahan berkembang menjadi pelabuhan angkatan laut pada masa Perang Dunia Kedua.
Setelah perang berakhir, situs ini dinonaktifkan, lalu menjadi fungsi sepintas dari Angkatan Laut Jerman. Sekarang Laut Wadden masuk dalam daftar situs warisan dunia UNESCO.
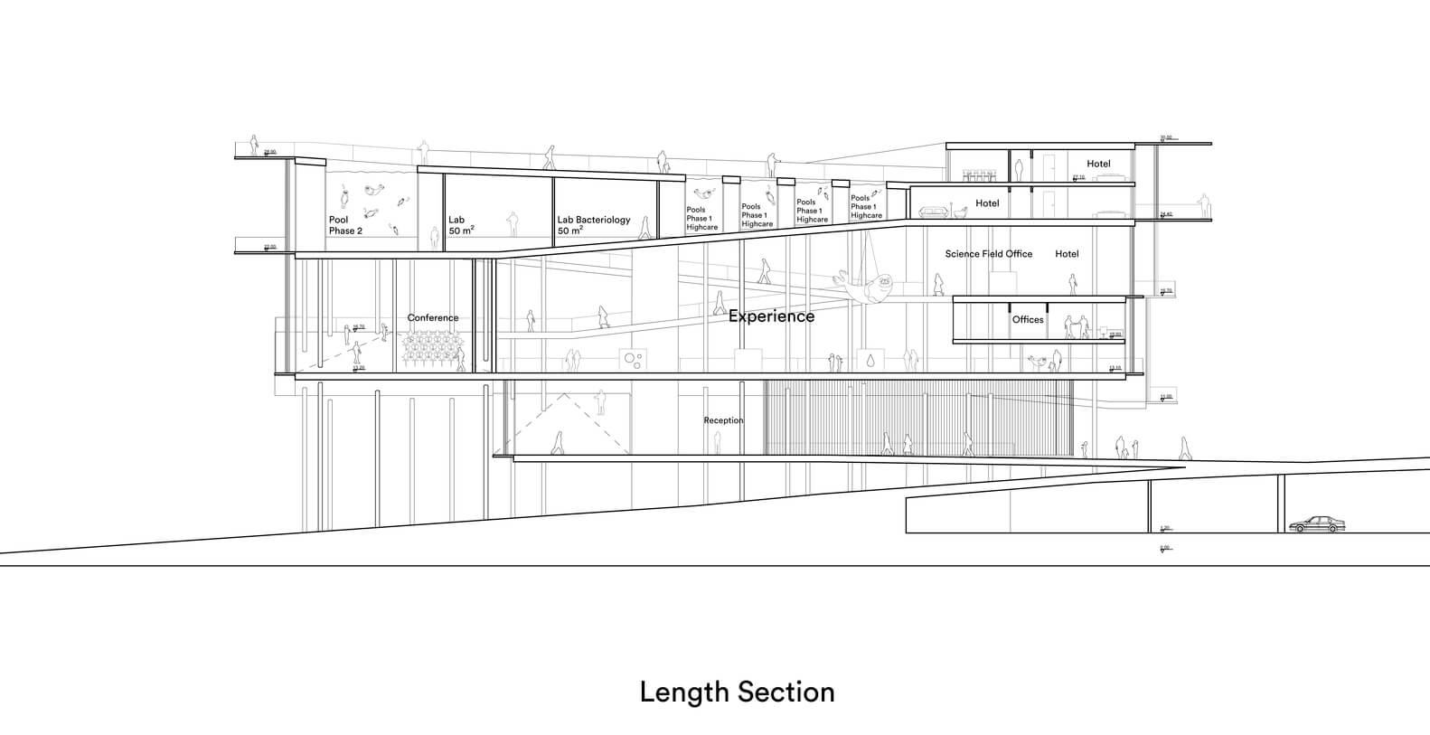
Penambahan 4 lantai yang dipisah menjadi 2 kelompok ruang kantor, lantai pertemuan/konferensi, dan lantai teknis dengan tambahan ruang penyimpanan serta ruang umum yang dilindungi dari angin dengan pemandangan menghadap pantai Laut Wadden.
Ini semua tidak dapat digambarkan hanya dengan kata-kata. Siap-siap terpesona dengan foto desain arsitektur kantor situs warisan dunia UNESCO di Laut Wadden yang akan selesai dibangun pada 2020 nanti.
Disadur dari ArchDaily.












