
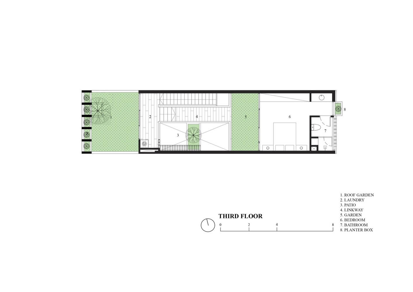
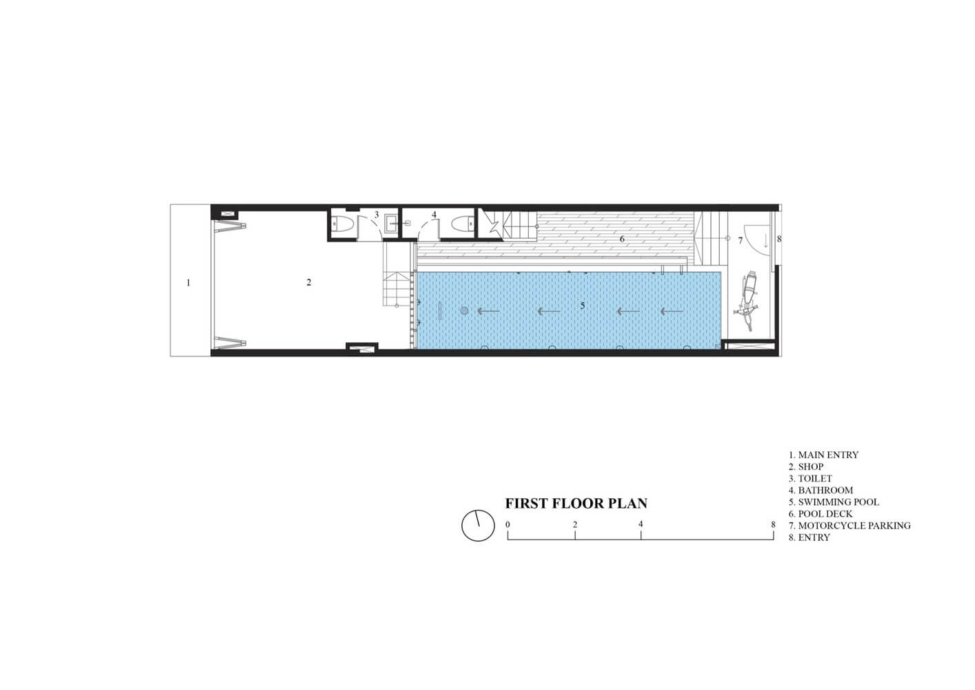
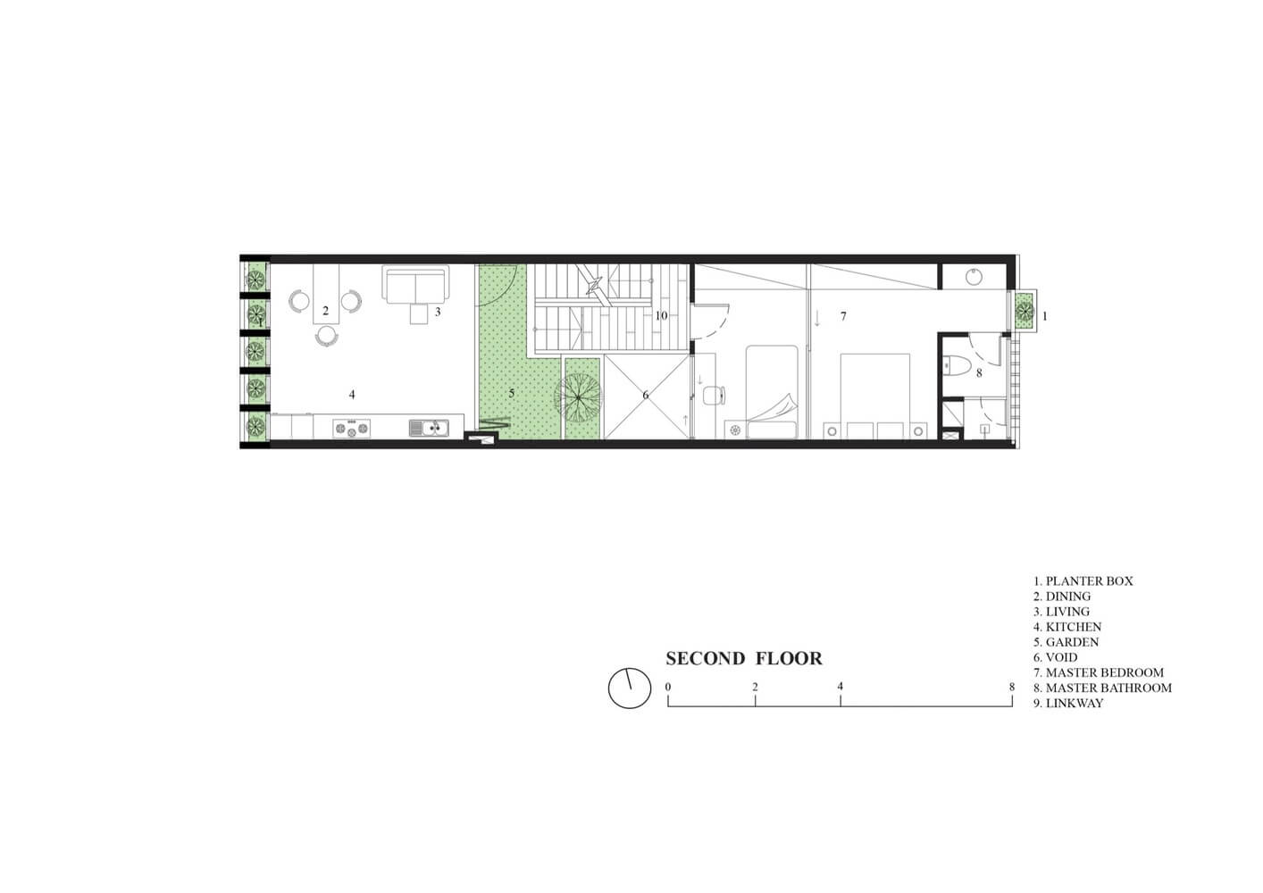
Punya ruko baru? Mau mendesain rumah toko hijau dengan pencahayaan alami? Contek saja desain ini. Lengkap dengan floor plan, 3D elements model, dan perencanaan penerangan.
Klik masing-masing gambar untuk melihat gambar dengan lebih jelas.
Indah, asri dan langsung terasa sejuk bukan?
Baca juga artikel seputar rumah hijau ini:
Bahan bangunan pengganti beton yang lebih ramah lingkungan.
Gunakan alternatif yang lebih ramah lingkungan ini untuk material bangunan.
Ternyata sampah ini bisa jadi bahan bangunan rumah.
Disadur dari ArchDaily.





















